投入式液位变送器安装过程图
投入式液位变送器安装过程
是基于所测液体静压与该液体高度成正比的原理,采用扩散硅或陶瓷敏感元件的压阻效应,将静压转成电信号。投入式液位变送器直接投入到被测介质中,安装使用相当方便。
固态结构,无可动部件,高可靠性,使用寿命长从水、油到粘度较大的糊状都可以进行高精度测量,不受被测介质起泡、沉积、电气特性的影响宽范围的温度补偿。投入式液位变送器具有电源反相极性保护及过载限流保护。那么,投入式液位变送器如何正确安装呢?如下几点:
1、由于罐底或舱底易沉积污泥、油渣等物,建议将测量探头离开罐(舱)底一定高度,以免杂物堵塞探头。
2、在介质波动较大,导气电缆很长的情况下,对探头应采用套筒将其固定,以防探头摆动而影响测量精度。
3、变送器侧面安装时,导气电缆弯曲半径应大于10厘米,避免弯曲过度而将导气电缆损坏。
4、投入式液位变送器接地端子应可靠接地,电源屏蔽线应与其相连。
5、测量易爆危险品时,必须严格按爆炸性环境用防爆电器设备通用要求和本质安全型电路和电气设备中的有关规定进行安装。
经过温度补偿和线性校正。转换成4-20mADC标准电流信号输出。该产品的传感器部分可直接投入到液体中,变送器部分可用法兰或支架固定,安装使用极为方便。FR投入式液位变送器是广泛应用于石油、化工、电厂、城市供排水、水文勘探等领域的水位和液位的测量与控制。
投入式液位变送器安装图解
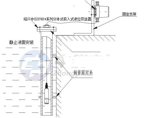
投入式液位变送器应安装在静止的深井、水池中时,通常把内径Φ45mm左右的钢管(不同高度打若干小孔,以便水通畅进入管内)固定于水中,然后将投入式液位变送器放入钢管中即可使用。变送器的安装方向为垂直,投入式安装位置应远离液体出入口及搅拌器。在有较大振动的使用场合,可在投入式液位变送器上缠绕钢丝,利用钢丝减震,以免拉断电缆线。测量流动或有搅拌的液体的液位时,通常把内径Φ45mm左右的钢管(在液体流向的反面不同高度打若干小孔,以便水通畅进入管内)固定于水中,然后将投入式液位变送器放入钢管中即可使用。

一体式投入式液位变送器安装图
在敞口的容器中测量静态液位时,把投入式液位传感器直接投入到容器底部,在容器开口处用尼龙带或三脚可调安装架等将电缆线(接线盒)固定即可。在流动的液体中测量液位时,因介质波动较大,可以在液体中插入一根Φ45mm的钢管,同时在水流方向的反面不同高度的管壁上打若干小孔,使液体流入管内。另一种方法是在液体底部加装阻尼装置,以过滤泥沙和消除动态压力和波浪对测量的影响。

分体式投入式液位变送器安装图
维护保养:
1、每个月清洗一次。
2、清洗时先打开投入式水位仪铁管的旋帽,小心拿出液位计;再将液位计上附着的杂物(比如水草,浮游生物等)清除掉。
3、清洁水位计引压孔时,可使用三氯乙烯或酒精注入引压孔到其高度二分之一处浸泡5分钟左右,然后轻微晃动、重复多次,直到清洗干净位止。禁止使用任何器具清洗引压孔,以免损坏敏感芯子感压膜片。
投入式液位变送器使用与安装的注意事项
1、投入式液位变送器运输、储存时应恢复原包装,存放在阴凉、干燥、通风的库房内。
2、使用中发现异常,应关掉电源,停止使用,进行检查,
3、接供电电源时应严格按照接线说明进行连接。

投入式液位变送器接线图
同类文章排行
- 便携式多功能瓦斯可燃气体有毒有害气体 探测器探测仪检测仪
- 便携式可燃有毒有害气体二合一复合气体 检漏仪分析仪检测仪
- 便携式气体报警器 泵吸式可燃 有毒有害气体四合一气体探测仪
- 电磁流量计工作原理(智能电磁流量计怎么调),电磁式流量计原理
- 一体式电磁流量计(一体式电磁流量计接线端子说明)
- 管道式电磁流量计(电磁流量计是一种什么流量计)
- 一体式电磁流量计(一体式电磁流量计接线端子说明)
- 电磁流量计安装示意图(分体式电磁流量计接线教程)
- 手持式氧含量检测仪(手持溶氧仪哪个品牌好用)
- 自由浮球式蒸汽疏水阀(圆盘式疏水阀和浮球式疏水阀区别)
最新资讯文章
- 电磁流量计工作原理(智能电磁流量计怎么调),电磁式流量计原理
- 电磁流量计安装(电磁流量计安装直管段要求),电磁流量计安装图
- 电磁流量计(电磁流量计接线端子说明),电磁流量计安装要求
- 电磁流量计涡街流量计(涡街流量计和电磁流量计怎么选取),电磁流量计和涡街流量计哪个贵
- 小流量电磁流量计(电磁流量计流量变小的原因),电磁流量计流量范围
- 电磁流量计校验(电磁流量计校准方法),电磁流量计校验周期
- 电磁流量计校验(电磁流量计校准方法),电磁流量计校验周期
- 电磁流量计接线图(科隆电磁流量计接线图),电磁流量计安装图
- 电磁流量计(电磁流量计型号表示),电磁流量计安装要求
- 电磁流量计安装(电磁流量计安装要求图解)







首页
电话
QQ
联系